Стеллаж гардеробный: металлический стеллаж для гардероба
Стеллажи могут быть выполнены из разных материалов, каждый из которых имеет свои преимущества недостатки. Стеллажи из металла отличаются своей прочностью и низкой стоимостью.
В зависимости от различных характеристик выделяются следующие виды металлических стеллажей:
- Стеллажи с низкой загруженностью (до 200 кг). Такой стеллаж подойдет для гардеробной или гостиной, где нужно разместить не очень много предметов.
- Стеллажи с высокой выносливостью (до 400 кг). Такие прочные стеллажи подойдут в промышленных целях.
- Паллетные стеллажи.
- Платформенные стеллажи.
- Консольные стеллажи.
Комплектующие гардеробной системы
Полки
Полки — необходимый элемент в любой системе хранения. Материалы изготовления – ЛДСП, МДФ. Они выдерживают большое количество вещей и максимальные нагрузки. Пластик или закалённое стекло подходят для лёгких вещей, но требуют бережного обращения. Сетчатая конструкция особенно хороша для хранения сумок, небольших чемоданов, обуви.


Очень удобны откидные, выдвижные, съёмные виды полок, которые можно двигать и переставлять. Функциональными и практичными являются выкатные полки, несмотря на то, что изготавливаются они не так часто. В отличие от обычных выдвижных ящиков, такой вид хранения вещей обеспечивает открытый доступ к ним и всегда позволяет отыскать нужный предмет в короткое время.


Стеллажи
Стеллажи – идеальный вариант, если гардеробная находится в маленьком помещении, например, в кладовке. Хорошим решением этого вопроса станет стеллаж многоуровневого профиля. Вещей в него можно поместить достаточно, а сам внешний вид изделия будет радовать глаз своей компактностью и аккуратностью.

Существуют также мобильные стеллажи на колёсиках, основу которых составляют корзины для белья из прочных металлических прутьев. Такую конструкцию можно легко переместить к гладильной доске, сложить в неё поглаженное бельё и убрать обратно.


Коробки
Коробки могут быть разного цвета, размера, в зависимости от цели применения. Изготавливаются из плотного картона, фанеры, прозрачного или полупрозрачного пластика. Могут как соответствовать основной цветовой гамме гардеробной комнаты, так и стать своего рода украшением для неё, сочетая в себе и практичность, и яркость цветовой гаммы.


Штанги
Штанги -вешала незаменимы в тех условиях, когда вещи должны в любой момент выглядеть безупречно и аккуратно. Монтируются на удобной высоте, а одежда просто перекидывается через них. Иногда используются мягкие зажимы для дополнительной фиксации.


Фурнитура
Фурнитура — набор комплектующих, посредством которых собирается гардеробная. Это несущие рельсы, навесные направляющие, кронштейны, декоративные заглушки, штанги и крючки для них. При целенаправленном использовании тех или иных элементов любая модульная система легко изменяется. Можно приобрести набор «Соберу сам», в котором уже содержится все необходимое для установки, а при необходимости дополнить его по своему усмотрению.

Основные моменты [обратите внимание]
В планировании гардеробов нужно учитывать габариты комнаты или отведенного места под установку, количество вещей для хранения, закрытость/открытость системы.
Рекомендации по оборудованию, наполнению, монтажу гардеробной:
- Оптимальное место установки – в спальне или рядом с ней.
- Дополнение гардеробной – зеркало, подсветка, сидение, пуф.
- Встраиваемые системы подходят для нестандартных комнат.
- Отделить гардеробную можно перегородкой из гипсокартона.
- В высоких системах хранения незаменимы пантографы – лифты.
- Скрыть неровность стен помогают панельные варианты.
- Перед самостоятельным монтажом обязательно выполняют разметку.
Благодаря хорошей вместительности гардеробных при компактных габаритах можно отказаться от установки громоздких шкафов и организовать оптимальное место хранения вещей. Эстетическую привлекательность подчеркивает дизайн конструкций. Использование гардеробных помогает упорядочено хранить одежду и обувь, располагать вещи по сезонности, цвету, материалу.
Гардеробный стеллаж
Оптимальным решением для каждой гардеробной считается такой специальный стеллаж. Он прекрасно вписывается даже в маленькую комнату, а также собрать его не составит труда.
Он вовсе может быть сделан самостоятельно из ДСП или других доступных и простых в обработке материалов. Имеется множество фотографий с этой конструкцией, поэтому можно убедиться в привлекательном внешнем виде таких гардеробных.
Гардеробный стеллаж может быть куплен в готовом виде или сделан самостоятельно. В последнем случае можно воплотить уникальные задумки, идеи, а также устроить гардеробную, идеально соответствующую запросам владельцев помещения.
Фото готовых таких стеллажей в большом количестве имеется ниже, поэтому можно выбрать оптимальный вариант. При самостоятельном создании реализуются последовательные этапы:
- первоначально наносится разметка, определяющая размеры и параметры будущей конструкции, причем она должна располагаться как на стенах, так и на полу помещения, где планируется выполнять работу;
- выполняется установка направляющих, причем к базовому основанию они должны прикрепляться спинкой, чтобы был сформирован паз для вставки стоек;
- обшивается конструкция гипсокартоном или разными плитами, а выбор зависит от предпочтений владельцев будущей гардеробной, а также от выбранного стиля.
Таким образом, стеллаж идеально подходит для гардеробных комнат. Гардеробные комнаты с этой конструкцией отличаются высокой вместительностью, привлекательностью, многофункциональностью.
Виды
Сетчатые гардеробные имеют свои конструктивные особенности, зависящие от функциональности изделия и его надежности. Такие гардеробные могут ограждаться от общего пространства комнаты или быть полностью открытыми. Существуют основные виды сетчатых гардеробных:
- по типу конструкции можно различать системы, которые примыкают к задней стене и, несущие каркасы которых распираются между потолком и полом, или боковыми стенами. Первый тип более распространенный и универсальный, так как существует возможность изменять расположение элементов схемы после ее окончательного монтажа. Планировка систем, основные планки которых крепятся на боковые стены или распираются между потолком и полом, редко меняется после монтажа. В них часто используются передние опоры. Эта схема выглядит менее эстетично первой, но она крепче, за счет большего количества опор;
- существуют полностью металлические системы, или комбинированные с другими материалами. Комбинированные гардеробные имеют деревянные или пластиковые полки и ящики. Их легче вписать в определенный интерьер и сочетать с различными дизайнами. Кроме того, наличие закрытых ящиков может облегчить хранение вещей или одежды;
- наличие или отсутствие фасада также делит гардеробную на два типа. Выбор дверей зависит от размеров комнаты, а также от места расположения самой гардеробной. Двери устанавливаются абсолютно любого типа исключительно на вкус дизайнера. Без фасада сетчатая система отлично вписывается в любую комнату, образуя удобную линейную или угловую гардеробную.





Сферы применения
Полочные стеллажи ассоциируются с оснащением склада. Но они предназначены для хранения различных предметов не только в складских условиях в собственном смысле слова. Достаточно сказать, что подобные изделия находили применение еще в античных библиотеках. Современные библиотекари также ежедневно пользуются этим средствами хранения и будут применять их до тех пор, пока не прекратится широкое использование бумажных изданий. Традиционный российский подход по меньшей мере с XIX века подразумевает, что каждое предприятие и организация сами снабжают себя стеллажами — вот почему очень долго такое оборудование производилось только максимально подогнанным под нужды конкретных отраслей.
Но ситуация существенно изменилась в последние десятилетия: и склады тоже вынуждены меняться. Сейчас они строятся по принципам максимальной гибкости и быстрого перестроения с одной задачи на другую при минимальных затратах. Классические полочные стеллажи обычно выдерживают нагрузку не более 250 кг. Все, что мощнее, или относится к другому типу, или изготавливается по спецзаказу. Но и с подобным ограничением стеллажи могут использоваться для оснащения:
-
библиотек;
-
архивов;
-
делопроизводственных комнат;
-
бухгалтерий;
-
частных жилищ (под посуду, одежду, книги).
Преимущество гардеробных систем из металла
Металлические гардеробные системы — это универсальные конструкции. В первую очередь их устанавливают в складских и производственных помещениях, офисах, предприятиях. В квартирах и домах для гардеробной можно выделить комнату или нишу, оборудовав ее металлическими стеллажами. Несколько преимуществ таких систем:
- Долговечность — ни один материал не прослужит столько же, сколько металл. Такие конструкции не боятся влаги, экстремальных температур, интенсивной эксплуатации. Их внешний вид не пострадает от небрежного использования или нерегулярного ухода.
- Прочность — подходят для хранения тяжелых грузов, крупных предметов, повредить конструкцию практически невозможно.
- Универсальность — нет ограничений в назначении, можно хранить любые предметы и материалы.
- Компактность и мобильность — систему можно неограниченно собирать, разбирать, добавлять элементы.



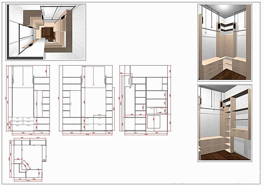
Чертежи и схемы
Если создается гардеробная комната своими руками, то нужны чертежи и схемы, по которым будут осуществляться основные работы. В этих документах непременно продумываются основные моменты:
- размер помещения;
- расположение всех элементов, содержащихся здесь;
- учитывается необходимость, размеры и иные параметры дверей;
- производится расчет отделочных материалов и креплений;
- предусматривается использование разных выдвигающихся конструкций;
- осуществляется расчет всех затрат, необходимых для получения полноценной и комфортной комнаты;
- продумывается заранее планировка.
Чертеж непременно создается предварительно на бумаге, причем при его изучении схематично будет видно, как будет выглядеть комната после выполненных работ. Если отсутствует опыт работы с чертежами, то можно воспользоваться специальными программами.
Таким образом, гардеробная – это полезная, многофункциональная комната, предназначенная для хранения разных предметов, одежды. Чтобы понять, как сделать гардеробную своими руками, рекомендуется предварительно тщательно изучить обучающее видео, чтобы учесть многочисленные нюансы, особенности этой работы.
Важно пользоваться во время работы заранее сделанными чертежами, а также применять исключительно качественные, надежные материалы. При грамотном подходе гарантируется получение высококачественной, долговечной конструкции, выдерживающей разные нагрузки и воздействия
Нельзя забывать об оптимальной вентиляции, равномерном освещении. От всех вышеуказанных нюансов зависит комфортность использования самостоятельно сделанной гардеробной.



Следующая
ГардеробСистемы хранения обуви в гардеробную
Советы хранения вещей открытым способом
- На открытой вешалке можно хранить базовый гардероб в одном цвете — это стильный и удобный вариант, который не испортит интерьер пестротой разноцветной одежды.
- Если хотите разместить на вешалке одежду разного цвета или подобранные цветные комплекты, вешайте рядом одежду близкого оттенка, создавая переход от цвета к цвету.
- Используйте вешалки одного типа и цвета.
- Убирайте несезонные вещи в коробки на антресоли или вглубь шкафа, оставляйте не виду вещи, подходящие для погоды. Пусть ваша комната дышит и соответствует сезону.
- Разнообразьте полки открытой системы аксессуарами: шляпами, сумками, украшениями, шейными платками, очками и ремешками. Они станут декором гардеробного уголка и помогут разнообразить образ.
- Используйте крючки или мебельные ручки, чтобы расположить на них аксессуары.
- Дополнительные аксессуары и мелкие предметы одежды лучше хранить в органайзерах одного цвета или коробках. Их можно разместить рядом со стойкой или под ней.
Instagram @jeangordon.style
zaradesignhomedecor.com
Instagram @heyhegia
Instagram @candicemtay
Instagram @itsaliciea
Instagram @mellybonitastyle
Instagram @shannahleainteriors
Instagram @jeangordon.style
Instagram @jeangordon.style
Instagram @cocoabutterdiaries
Instagram @oh.eight.oh.nine
Как выбирать
Выбирать гардеробную сетчатого типа стоит исходя из своих личных предпочтений, дизайна интерьера и свободного пространства комнаты. Соблюдение всех этих критериев поможет создать удобное и функциональное место для хранения множества вещей и одежды.
Исходя из того, куда будет крепиться основной каркас системы, выбирается либо подвесная, либо опорная конструкция. Первая вешается на стену, вторая устанавливается на пол и упирается в потолок или стену. Опорная конструкция выносливее подвесной и, если планируется «максимальное» использование системы, то она идеально подойдет для этой задачи.
Нужно также определиться с местом обустройства гардеробной. Если это будет угол, то стоит смотреть в сторону угловых конструкций, а если это будет стена – нужно выбрать линейную
Обратить нужно внимание и на то, будет ли в дальнейшем увеличиваться или уменьшаться пространство, отведенное для гардеробной. От этого зависит, нужно ли приобретать систему с возможностью изменения ее размеров после монтажа
В нише можно обустроить параллельную гардеробную со стеллажами друг напротив друга, также это можно сделать в длинном коридоре. Поэтому стоит смотреть в сторону неглубоких систем, для того, чтобы оставалось достаточно пространства между конструкциями.
Во время приобретения комплекта обязательно нужно обратить внимание на документацию, подтверждающую качество изделия. Желательно отдавать предпочтение более известным и распространенным производителям, которые могут предложить большой ассортимент дополнительных элементов для гардероба
Это пригодится, когда вы решите изменить конструкцию. Ведь найти уникальные комплектующие очень сложно, если их нет у оригинального производителя.



Комод
Младшим братом шкафа и гардероба является комод. Если давать определение, то комод — это невысокий предмет мебели с выдвижными ящиками, предназначенный для хранения одежды. Однако своим появлением комод обязан не шкафу, а сундуку. В процессе эволюции ларец приобрел ящики и перестал служить чемоданом, обосновавшись в модных интерьерах. Более подробно биографию комода вы всегда можете прочитать в нашем разделе «История мебели». Гардероб — ближайший родственник шкафа: по сути, гардероб — это шкаф, но предназначенный только для хранения одежды, в то время, как в шкафу можно разместить книги, канцелярские принадлежности, бытовую химию и многое другое в зависимости от назначения помещения.
Сегодня комод является неотъемлемой частью современной спальни и детской: в ящиках удобно хранить одежду, полотенца и постельное белье.
На фото: комод Drawer, стеллаж .
Итак, на какие моменты следует обратить внимание при выборе стеллажа?
Грузоподъёмность стеллажа
Основная эксплуатационная характеристика стеллажа. При выборе стеллажа следует в первую очередь хорошо посчитать массу грузов, которые будут на нем храниться. Учитывайте не только грузоподъемность полки, но и общую грузоподъёмность стеллажной секции (нагрузочный потенциал стоек), на случай если вам потребуется увеличить количество полок для хранения и, соответственно, повысить нагрузку на стеллаж.
Ни в коем случае не превышайте заявленную производителем грузоподъёмность: конечно, если вы нагрузите стеллаж на 300 кг вместо 250, сразу он не развалится, но если превышение нагрузок будет носить постоянный характер, то со временем конструкция стеллажа деформируется, и прочность системы окажется под серьёзной угрозой. В спорных случаях лучше купить стеллаж большей грузоподъёмности, оставив запас по нагрузке, чем рисковать, покупая «впритык».
Покраска металлических стеллажей
Наиболее распространенная покраска сейчас – порошковое полимерное покрытие. Оно долговечно, достаточно устойчиво к физическим, химическим и температурным воздействиям, эстетично и аккуратно смотрится. Ещё один, чуть менее популярный, вариант – оцинковка. С точки зрения устойчивости к повреждениям и коррозии оцинковка примерно идентична порошковой краске. С точки зрения внешнего вида оцинковка проигрывает полимерной покраске, но зато она ощутимо дешевле. То есть, если вам не принципиален внешний вид стеллажей, но требуется максимальная экономия при их покупке – можно остановиться на оцинкованных стеллажах, если же нужна внешняя привлекательность (например, установка стеллажей в торговых залах или офисных помещениях) – то лучше купить стеллаж с полимерным покрытием.
Крепление полок
Если вам нужно купить полочные стеллажи, обратите внимание на такой фактор, как крепление полок к стойкам. Оно бывает двух видов
Болтовое крепление (стеллажи MS): стеллаж собирается с помощью обычных болтов, для монтажа требуется применение инструмента (отвертки), при этом процесс сборки занимает довольно ощутимое время. Зацепное крепление (стеллажи СБР): монтаж осуществляется посредством крепления полок на зацепах, которые автоматически подклиниваются под нагрузкой, усиливая жесткость и устойчивость конструкции. Каждый тип крепления имеет свои достоинства и недостатки. Стеллажи на болтах дешевле, но на их сборку вам потребуется немало времени, а чтобы добавить полку, придётся разобрать весь стеллаж и собрать потом заново.
Такой вариант подойдет в случае, когда вам не требуется регулярное изменение конструкции, то есть стеллаж будет долго стоять в первозданном виде. Зацепное крепление делает стеллажи дороже, но зато собираются они буквально в считанные минуты, и так же быстро модифицируются: можно изменить количество полок и высоту между ними, не разбирая стеллаж. Зацепные стеллажи хороши, когда необходима быстрая сборка стеллажной системы, или же планируется часто менять её конфигурацию.
Выбор проверенного поставщика
Важно не только какой стеллаж купить, но и – у кого! Наиболее выгодно приобрести стеллажи напрямую у производителя: цены могут отличаться не сильно, а вот по срокам поставки разница может быть очень значительная, производители обычно держат на складах большие запасы готовой продукции, и стеллажи, в особенности самые ходовые модели, будут доставлены очень быстро. Производители могут позволить себе давать хорошие скидки, а также реализовывать сложные индивидуальные проекты. . Второй хороший вариант – купить стеллаж у официального дилера, который работает с производителем напрямую
В этом случае вы получаете дополнительную гарантию качества, ведь дилеры тоже ценят свою репутацию и не будут сотрудничать с недобросовестными производителями. Мы поможем вам определится с выбором и конструктивными особенностями данной продукции.
Второй хороший вариант – купить стеллаж у официального дилера, который работает с производителем напрямую. В этом случае вы получаете дополнительную гарантию качества, ведь дилеры тоже ценят свою репутацию и не будут сотрудничать с недобросовестными производителями. Мы поможем вам определится с выбором и конструктивными особенностями данной продукции.
Как выбрать и где разместить?
Для начала следует определиться с тем, какую именно стеллажную систему вы хотите приобрести и сколько денег на нее потратить. Перед покупкой необходимо изучить все материалы и крепления. Они должны быть прочными и качественными. В большинстве стеллажных систем должны присутствовать съемные детали.
Универсальным дизайном обладают металлические системы. Они будут гармонировать с любым интерьером. Подобные конструкции подойдут для эксплуатации в условиях помещений с влажным воздухом.
Красивые системы из древесины будут эффектно смотреться в комнатах как в современном, так и классическом стиле. В таких конструкциях нередко присутствуют декоративные детали: карнизы, цоколи и пилястры.
7фотографий
Конструкции из гипсокартона можно отделать любыми другими материалами и установить в помещениях разной стилистики. Исключением является только классика. В таких гардеробных комнатах лучше будут смотреться деревянные системы стеллажей.
Если гардеробная комната является большой и просторной, то можно обратиться к самым разным вариантам стеллажей. Все зависит только от личных предпочтений. В условиях узкой гардеробной будут удобными выкатные системы, так как они являются весьма вместительными и не занимают много места.
Назначение
Исходя из назначения стеллажные системы бывают нескольких видов. Это определяет вид конструкции, ее дизайн, материалы изготовления, размеры, практичность.
Например, модификации предназначаются для установки внутри помещений и улицы.
Те разновидности, что приобретают для дачи либо мастерской, отличаются меньшей декоративностью. Это надежные изделия с упором на практичность и функциональность.
Садовый стеллаж предназначен для размещения рассады в теплице на даче. На нем можно хранить хозяйственный инвентарь. Кроме того, он подойдет для складирования различных мелочей, инструмента, деталей, необходимых в быту. Технические конструкции монтируют в сарай, кладовку, под лестницу.
Офисные
Стеллажные системы этого типа имеют средние и компактные размеры. Предназначены для систематизации, хранения деловых бумаг (в том числе в папках формата А4).
Архивные
В эту линейку входят устройства узкопрофильного использования. Это элементы меблировки архивных помещений, где хранится редко затребованная документация (карточки, документы, папки, личные дела). Приобретаются для библиотек, архивных помещений учреждений в разных сферах. Имеют специальную обработку края, исключающую случайное травмирование.
Бытовые
Отдельная категория конструкций, являющаяся частью меблировки в частных домах, городских квартирах, иногда офисах, рабочих помещениях. Используются для хранения различных вещей, интерьерных аксессуаров. Обладают большей декоративностью, бывают частично закрытыми, выполняются из комбинированных материалов.
Выставочные
Модификации демонстрационной линейки предназначены для демонстрации товаров, созданных экспозиций. Они используются для выставки изделий, произведенных конкретным брендом.
Складские
В эту группу входят разновидности стеллажей с минимальной декоративностью и высокой надежностью. Это системы стационарного и передвижного типов с разным строением и зачастую большими габаритами. Производятся из металла, снабжены прочными соединительными элементами.
Торговые
Продукция торгового типа выпускается для оборудования подсобных и складских помещений магазинов. Она может устанавливаться в точках реализации продукции, например, в залах для выкладки товара, аптеках, книжных магазинах.
Стеллаж
Стеллаж можно назвать поистине универсальным элементом системы хранения: в зависимости от дизайна он может заменить книжный шкаф или даже стать основой гардеробной. Стеллажи — это несколько ярусов полок, закрепленных на стойках или боковых стенках, однако бывают и исключения, например модель
бренда Seletti. Этот стеллаж состоит из отдельных модулей, которые можно закрепить в удобном для конкретного помещения положении, но при этом все равно получится несколько уровней полок для хранения.
Стеллажи занимают мало места, но при этом позволяют разместить много предметов. Преимущество стеллажей заключается в том, что все, расположенное на полках, всегда хорошо просматривается, благодаря чему стеллажи отлично подходят на роль витрины для какой-либо домашней коллекции. Однако такой способ хранения имеет и свои недостатки: на открытых полках может скапливаться пыль. Кроме того, хранить на стеллаже лучше что-то эстетичное, например, если стеллаж стоит в гостиной, на полках не стоит размещать белье, в этом случае шкаф имеет преимущество перед стеллажом. Но если речь идет об отдельной гардеробной, то на открытых полках вы быстрее отыщете нужную вещь
Если в доме есть дети, важно надежно зафиксировать стеллаж и любой другой предмет, полки которого напоминают лестницу, например, привернув его к стене. У ребенка наверняка возникнет соблазн забраться повыше, а у вас появится больше времени, чтобы спасти малыша.
Одно из преимуществ стеллажа — возможность использовать его как полупрозрачную перегородку между разными зонами в интерьере. Этим часто пользуются дизайнеры и архитекторы при оформлении кафе и ресторанов.
На фото: стеллаж , подвесной светильник , кресло , песочные часы .
Материалы
Изначально стеллажи производили из разных сортов древесины. Однако в условиях сырости и холода, присущих складским помещениям, такие устройства не служили долго. Ввиду этого, в производстве стали применять металл.
Деревянные стеллажи производят для меблировки офисных, жилых помещений. Из дерева делают самодельные конструкции для обустройства дач, кладовок, гаражей.
Часто в производстве современных стеллажей применяют металлический профиль с полимерным покрытием. Металл делает конструкции надежней, прочней, он стоек к негативным внешним факторам. Металлические изделия обладают усиленной грузоподъемностью.
Например, многофункциональная система Joker имеет замки из силумина, стальные консоли, хромированные декоративные окончания. Ее полочные вкладки выполнены из пластика.
При изготовлении моделей бытового назначения применяют производные древесины. Продукция из МДФ и ДСП не отличается высокой надежностью и долговечностью. Они неустойчивы к влаге и воде, большим механическим нагрузкам.
Варианты из МДФ-панелей бывают обычными и модульными. Такой тип сборки позволяет видоизменить интерьер помещений с учетом человеческого вкуса, нужд и планировки помещения. Они могут стать украшением спальни и даже прихожей.
Для малогабаритных квартир и небольших кладовок производят изделия из прочного пластика. Реже в производстве используется стекло. Такие модели имеют минимальные размеры, несут не столько функциональную, сколько декоративную функцию.
Рекомендации по выбору
Гардеробная система из металла будет служить в течение многих лет. До приобретения конструкции нужно тщательно спланировать расположение и наполнение стеллажей. Система не должна полностью заполнять пространство помещения, для комфортного использования необходимо место для обзора
На что обратить внимание при выборе:
Качество покрытия на стальных деталях — не должно быть сколов, трещин, непрокрашенных участков.
Максимальная нагрузка — конструкция и крепеж должны выдерживать вес содержимого полок, особенно это важно для производственных и складских помещений.
Эргономичность наполнения — лучше избегать слишком глубоких полок и ящиков (60 см), конструкция должна содержать только полезные площади для хранения.
Металлическая система приобретается под конкретные нужды. Например, шкафы гардеробные для производственного цеха должны состоять из двух отделений для чистой и грязной одежды. Корпус шкафа для помещений с высокой влажностью может быть сделан из нержавеющей стали, для сухих — из обычной с полимерным или эпоксидным покрытием. Во втором случае надо проверить равномерность нанесения, потому что сколы быстро заржавеют.
Если шкафы после установки предполагается переставлять или перевозить, то лучше выбрать сборную конструкцию. Цельносварные стеллажи подойдут для установки на долгий срок
Итак, выбирая металлический шкаф, необходимо обратить внимание на следующие параметры:
- назначение;
- тип сборки конструкции;
- вид металла;
- качество покрытия.
Важным достоинством изделия является гарантийный срок и наличие сертификата качества. Опираясь на эти рекомендации, можно выбрать металлический шкаф, который будет служить в течение многих лет и не потеряет внешний вид.




Интересные решения в интерьере
Обычно системы хранения либо находятся в отдельном помещении, либо делаются в виде части комнаты. Дизайнеры советуют помещать гардеробные на лоджии или задействовать «мертвую» зону в квартире.
На сегодня гардеробные можно оборудовать в кладовых, нишах или отдельных комнатках с окошком. В этом случае там поместятся вещи всего семейства. Устанавливают обычно зеркальце, гладильную доску, пуфы, туалетный столик, что удобно. Комната используется как примерочная. В ней довольно уютно и можно укрыться от посторонних.
Гардеробная, как часть комнаты, отгораживается стеной из гипсокартона. Иногда ширмой или тяжелой занавеской. Фишка – выделяется неиспользованная часть (место под лестницей или тупик в коридоре). Рекомендуется оформлять гардеробную в одной цветовой палитре с остальной комнатой. А вот перегородки можно сделать какими угодно: зеркальными, прозрачными, деревянными или из ткани, в виде гармошки, раздвижные.
















































































